817 PEARY LANE, FOSTER CITY CA 94404
- 3 beds
- 2.50 baths
- 1,340 sq.ft.
Property Description
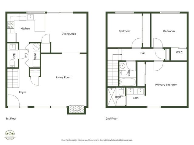
Step into this well cared for attached townhome where comfort and practicality come together. As you enter, you are welcomed into a warm living room anchored by a fireplace with gas starter, creating an easy space to relax or gather. Laminate flooring runs through the main level, offering both style and durability. The dining area sits just off the living room and flows naturally into the kitchen, which overlooks the rear patio. A sliding glass door opens to a private, well sized outdoor space that feels tucked away and is ideal for morning coffee or casual evenings at home. A conveniently located hallway laundry area adds to the everyday ease of living, along with a main level half bath for guests. Upstairs, you will find three comfortable bedrooms and two full bathrooms. The primary suite features its own en-suite bath with dual sinks, providing a functional and private retreat. Additional highlights include a detached two car garage, offering both parking and extra storage. Set within a city known for its waterfront paths, parks, and everyday conveniences, Foster City continues to be one of the most sought after places to call home.
Listing Courtesy of Julie Flouty, Compass
Interior Features
Exterior Features
Use of this site means you agree to the Terms of Use
Based on information from California Regional Multiple Listing Service, Inc. as of March 30, 2026. This information is for your personal, non-commercial use and may not be used for any purpose other than to identify prospective properties you may be interested in purchasing. Display of MLS data is usually deemed reliable but is NOT guaranteed accurate by the MLS. Buyers are responsible for verifying the accuracy of all information and should investigate the data themselves or retain appropriate professionals. Information from sources other than the Listing Agent may have been included in the MLS data. Unless otherwise specified in writing, Broker/Agent has not and will not verify any information obtained from other sources. The Broker/Agent providing the information contained herein may or may not have been the Listing and/or Selling Agent.








































