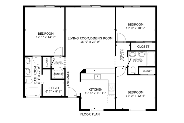
28740 DESERT PRINCESS DRIVE, CATHEDRAL CITY CA 92234
- 3 beds
- 1.75 baths
- 1,285 sq.ft.
- 1,742 sq.ft. lot
Property Description
Prime Location in a Gated Community - Desert Princess Palm Springs Welcome to your newly renovated desert oasis, ideally situated in one of the safest and most sought-after gated communities. Whether you're seeking a year-round residence or a luxurious vacation retreat, this stunning home offers the perfect blend of comfort, elegance, and convenience.Inside, you'll find a beautifully curated interior inspired by European design. Each space has its own unique character--from the classic charm of Romantic English wallpaper in one bedroom to the vibrant tropical theme in another. The emerald-toned kitchen features a breathtaking Chinoiserie-style yellow accent wall, while the family room showcases freshly painted walls in a stylish Sapphire palette. Every room is bathed in natural light, thanks to expansive floor-to-ceiling windows that fill the home with warmth and sunshine.Situated on a spacious corner lot, the property boasts a double-gated private front patio and a large open rear patio offering panoramic views of the surrounding mountains and golf course. Enjoy resort-style amenities just steps away, including tennis and pickleball courts, a fully equipped 24 hr gym, a spa with Sauna , club house, and two large swimming pools with jacuzzis--all within minutes from your doorstep.Additional upgrades include a newly installed skylight, brand-new appliances, washer and dryer, and a new water heater--ensuring both style and functionality.HOA dues include: Maintenance of front and back yards including outside water, HOA grounds and walking paths, trash, 2 DVR/HD Spectrum Cable Boxes as well as high-speed internet. This gated community has a 24 hour security guard at the front gate. Owners have use of Fitness Center, Tennis Courts, Pickle Ball Courts, discounts at the Clubhouse Grille, Dining Room, Masters Lounge ,Pro Shop and Double Tree Hilton Hotel. The Desert Princess has an affordable 27-hole PGA Championship Golf Course and is rated among the best in the valley by Golf Digest.SELLER IS VERY MOTIVATED!
Listing Courtesy of Olga Solovyeva, Nightingale Realty, Inc
Interior Features
Exterior Features
Use of this site means you agree to the Terms of Use
Based on information from California Regional Multiple Listing Service, Inc. as of February 17, 2026. This information is for your personal, non-commercial use and may not be used for any purpose other than to identify prospective properties you may be interested in purchasing. Display of MLS data is usually deemed reliable but is NOT guaranteed accurate by the MLS. Buyers are responsible for verifying the accuracy of all information and should investigate the data themselves or retain appropriate professionals. Information from sources other than the Listing Agent may have been included in the MLS data. Unless otherwise specified in writing, Broker/Agent has not and will not verify any information obtained from other sources. The Broker/Agent providing the information contained herein may or may not have been the Listing and/or Selling Agent.









































