24501 VIA MAR MONTE, CARMEL CA 93923
- 2 beds
- 2.00 baths
- 1,370 sq.ft.
Property Description
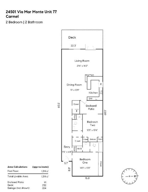
Tucked in the peaceful hills of Carmel, 24501 Via Mar Monte Unit 77 offers the perfect blend of coastal charm and modern comfort. This wonderful condo is designed for effortless living, whether you're seeking a serene retreat or a full-time residence. Step inside to find a bright, airy living space with large windows that bathe the interior in natural light. The open-concept layout seamlessly connects the kitchen, dining, and living areas, creating a warm and welcoming flow. Cozy up by the fireplace on cooler evenings, or step out onto your private balcony to take in the picturesque surroundings, including a delightful peek at Pt. Lobos and views of the Santa Lucia mountains. This thoughtfully designed 2-bedroom, 2-bathroom home is tailored for both comfort and convenience. The primary suite features a spacious layout and an ensuite bathroom. The second bedroom has an ensuite bathroom, making it ideal for guests. Located in a highly desirable part of Carmel, this property enjoys a mild microclimate and recreational amenities, including a pool and tennis courts. Its prime location offers quick access to the shops and restaurants of Carmel-by-the-Sea, nearby Monterey and Highway 1 for exploring Big Sur to the south.
, Compass
Interior Features
Exterior Features
Use of this site means you agree to the Terms of Use
Based on information from California Regional Multiple Listing Service, Inc. as of March 31, 2026. This information is for your personal, non-commercial use and may not be used for any purpose other than to identify prospective properties you may be interested in purchasing. Display of MLS data is usually deemed reliable but is NOT guaranteed accurate by the MLS. Buyers are responsible for verifying the accuracy of all information and should investigate the data themselves or retain appropriate professionals. Information from sources other than the Listing Agent may have been included in the MLS data. Unless otherwise specified in writing, Broker/Agent has not and will not verify any information obtained from other sources. The Broker/Agent providing the information contained herein may or may not have been the Listing and/or Selling Agent.


















































