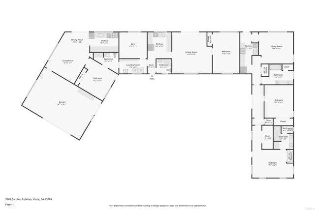
2068 CAMINO CULEBRA, VISTA CA 92084
- 4 beds
- 4.00 baths
- 3,060 sq.ft.
- 75,359 sq.ft. lot
Property Description
Spectacular panoramic OCEAN and mountain views await you from this single story remodeled home on 1.73 acres! Tastefully sectioned into 3 separate living units, each with an updated kitchen, new appliances, A/C, ocean views and own entrances, perfect for multigenerational living or rental income. Enjoy endless sweeping views from every room. Features include updated LED lighting throughout, whole house water filtration system, owned solar and solar attic fan, upgraded electrical system, 2 new Bosch electric 40 gallon water heaters, new ceiling fans, new satin finish elastomeric exterior paint designed for block and stucco, a new large storage building and new parking spaces, privacy fences and walkways. 220 volt added to the oversized 2 car garage for EV use. Units A & B are each 1BR/1BA approx. 750sf with a shared laundry with tons of storage and workout room between the 2 units. Unit C is 2BR/2BA with own laundry. Enjoy breathtaking sunsets on your private patio surrounded by natural landscaping and wildlife. Fully fenced with 3 entrances, RV/boat parking and plenty of room for all your toys. Experience the rural lifestyle and wonderful Vista climate with restaurants, hiking, shopping entertainment, pickleball at Brengle Terrace and so much more!
Listing Courtesy of Jamie Gilman, First Team Real Estate
Exterior Features
Use of this site means you agree to the Terms of Use
Based on information from California Regional Multiple Listing Service, Inc. as of February 26, 2026. This information is for your personal, non-commercial use and may not be used for any purpose other than to identify prospective properties you may be interested in purchasing. Display of MLS data is usually deemed reliable but is NOT guaranteed accurate by the MLS. Buyers are responsible for verifying the accuracy of all information and should investigate the data themselves or retain appropriate professionals. Information from sources other than the Listing Agent may have been included in the MLS data. Unless otherwise specified in writing, Broker/Agent has not and will not verify any information obtained from other sources. The Broker/Agent providing the information contained herein may or may not have been the Listing and/or Selling Agent.





















































































