15909 MERRILL, SAN BERNARDINO CA 92335

  • 3 beds
  • 2.50 baths
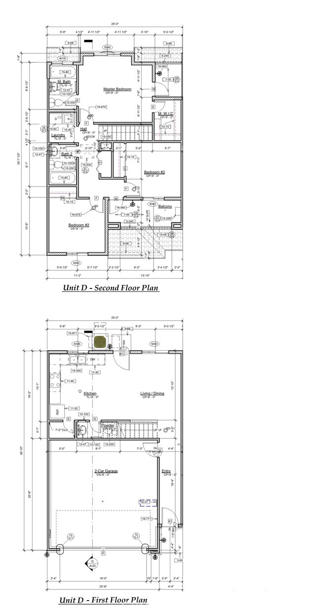
  • 1,188 sq.ft.
  • 2,402 sq.ft. lot
offered at $3,000
MLS#:IV25237713
Status: Active // Property Type: Townhouse
County: San Bernardino // Year Built: 2025

Property Description

Beautiful Brand-New 3-Bedroom Townhome in Fontana – Available 11/1/2025 Be the first to live in this brand-new, two-story townhome located in one of Fontana’s most desirable neighborhoods! This modern home offers 3 spacious bedrooms, 2.5 bathrooms, and a 2-car garage, combining comfort, convenience, and style. Enjoy a private backyard, perfect for relaxing or entertaining. The open-concept layout features a bright living area, modern kitchen, and high-quality finishes throughout. Located close to schools, shopping centers, parks, and easy freeway access, this home is ideal for families and professionals alike. Features: Brand-new construction 3 bedrooms / 2.5 bathrooms Two-story layout Attached 2-car garage Private backyard Excellent Fontana location near schools, shops, and freeways Move-in ready November 1, 2025

Listing Courtesy of SHAREEF AWAD, EMAAR ENTERPRISE

Interior Features

Heating: Central

Exterior Features

Exterior Features: Curbs, Gutters, Sidewalks, Street Lights
FOR MORE INFORMATION, PLEASE CONTACT AGENT:
  • raj qsar
    CEO | Owner |
    CalBRE# 01744847
    • cell 714.412.5019
    • office 949.612.2535
    email Raj

Use of this site means you agree to the Terms of Use

Based on information from California Regional Multiple Listing Service, Inc. as of October 12, 2025. This information is for your personal, non-commercial use and may not be used for any purpose other than to identify prospective properties you may be interested in purchasing. Display of MLS data is usually deemed reliable but is NOT guaranteed accurate by the MLS. Buyers are responsible for verifying the accuracy of all information and should investigate the data themselves or retain appropriate professionals. Information from sources other than the Listing Agent may have been included in the MLS data. Unless otherwise specified in writing, Broker/Agent has not and will not verify any information obtained from other sources. The Broker/Agent providing the information contained herein may or may not have been the Listing and/or Selling Agent.