1428 PARU ST, ALAMEDA CA 94501
- 5,475 sq.ft. lot
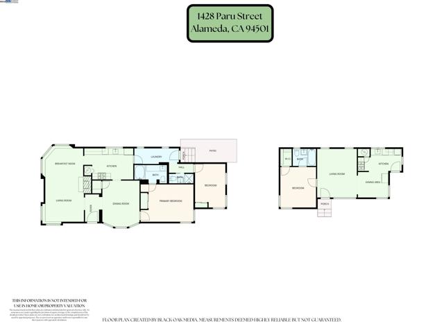
Property Description
Rare 2 vintage homes on 1 lot offer incredible flexibility—ideal for multi-generational living, rental income, or a private guest retreat. Located on a peaceful street just within blocks of Franklin Elementary, Franklin Park, and Morton Station shops. The front home features A/C, 2bds & 2 full baths, blending vintage charm with modern upgrades including a new electrical subpanel. A bright layout offers a formal dining room, updated kitchen with quartz counters and new stainless appliances, 2 new baths, refinished hardwood floors, new flooring in the kitchen, laundry, and rear bedroom, fresh interior and exterior paint, and refreshed landscaping. The redesigned fireplace, flex space for casual dining or game night, and built-in window seating enhance the extra spacious living room. Behind the main home, a detached 1-bed, 1-bath cottage (ADU) provides privacy and comfort with a modern kitchen, stainless appliances, quartz counters, in-unit laundry, walk-in closet, new electrical subpanel, new heater, and a private backyard for lounging, dining, coffee, or cocktails. A 2-car garage sits at the end of a long driveway. Two homes, one lot, endless opportunity. Live in one, rent the other, or enjoy both. Properties like this rarely come on the market. Don't miss this opportunity!
Listing Courtesy of Rose Krinks, BHHS Drysdale Properties
Interior Features
Exterior Features
Use of this site means you agree to the Terms of Use
Based on information from California Regional Multiple Listing Service, Inc. as of October 24, 2025. This information is for your personal, non-commercial use and may not be used for any purpose other than to identify prospective properties you may be interested in purchasing. Display of MLS data is usually deemed reliable but is NOT guaranteed accurate by the MLS. Buyers are responsible for verifying the accuracy of all information and should investigate the data themselves or retain appropriate professionals. Information from sources other than the Listing Agent may have been included in the MLS data. Unless otherwise specified in writing, Broker/Agent has not and will not verify any information obtained from other sources. The Broker/Agent providing the information contained herein may or may not have been the Listing and/or Selling Agent.
 
 


































































 
					 
					 
					