335 PLACEMARK, IRVINE CA 92614

  • 2 beds
  • 2.50 baths
  • 1,127 sq.ft.
offered at $3,700
MLS#:OC25224524
Status: Active // Property Type: Townhouse
Project/Tract: MDL // County: Orange // Year Built: 2021

Property Description

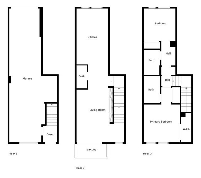
Welcome to MDL, a gated, amenity-rich community located in Uptown Irvine. This light-filled townhouse features a three-story design. The first level contains a 2-car, direct-access garage. The second is the main living level and boasts a generous open floor plan that includes a family room with a deck, a powder room, dining area, and a chef's kitchen with quartz countertops and stainless steel appliances. The third floor has dual primary suites. Enjoy a central courtyard with a resort-style pool with a spa and cabanas, an outdoor fireplace, seating areas, BBQs, a dining terrace, a tot lot, and a clubhouse. Located close to great retail and dining centers such as The District, Park Place Center, University Town Center, and South Coast Plaza, as well as Mason Regional Park, Back Bay Newport, and John Wayne Airport. HOA dues are included; small pets are considered with an additional deposit.

Listing Courtesy of Eric Sharkey, 24 Hour Property Management

Interior Features

Heating: Central

Exterior Features

Exterior Features: Gutters, Sidewalks, Storm Drains, Street Lights, Suburban
FOR MORE INFORMATION, PLEASE CONTACT AGENT:
  • marea sanhueza
    Realtor |
    CalBRE# 01773345
    • cell 951.712.8648
    • office 714.482.6362
    email Marea

Use of this site means you agree to the Terms of Use

Based on information from California Regional Multiple Listing Service, Inc. as of September 24, 2025. This information is for your personal, non-commercial use and may not be used for any purpose other than to identify prospective properties you may be interested in purchasing. Display of MLS data is usually deemed reliable but is NOT guaranteed accurate by the MLS. Buyers are responsible for verifying the accuracy of all information and should investigate the data themselves or retain appropriate professionals. Information from sources other than the Listing Agent may have been included in the MLS data. Unless otherwise specified in writing, Broker/Agent has not and will not verify any information obtained from other sources. The Broker/Agent providing the information contained herein may or may not have been the Listing and/or Selling Agent.