2212 PACIFIC DRIVE, CORONA DEL MAR CA 92625
- 4,726 sq.ft. lot
Property Description
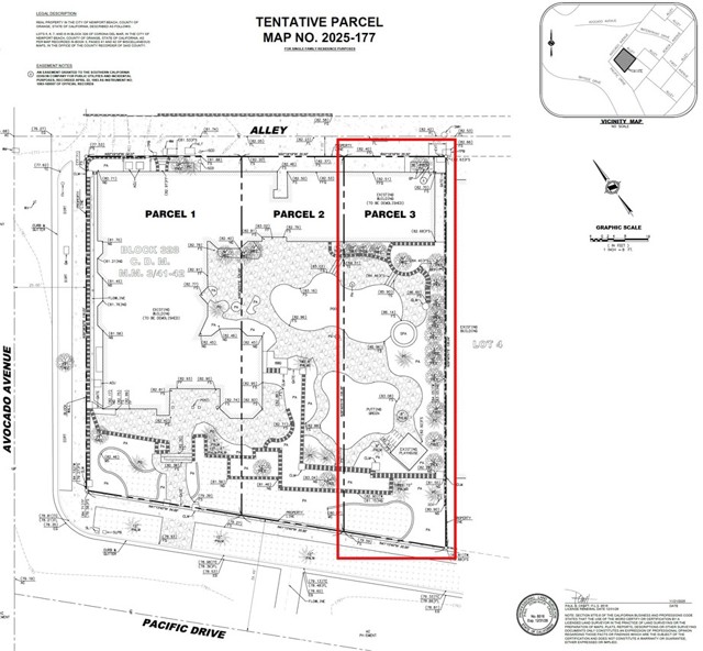
DEVELOPMENT OPPORTUNITY. Enjoy spectacular ocean and harbor views that rival or exceed Ocean Blvd with the unparalleled privacy found only on the coveted Pacific Drive in Corona Del Mar. Situated on an oversized 35.5-foot-wide lot, this newly subdivided parcel allows for a total of 4,761 buildable square feet with the ability to build out an additional 500 s.f. JADU or an 800 s.f. ADU. Plans designed by Teale Architecture are currently underway, estimated to be permit-ready by end of June 2026. Current plans feature a total of 4,600 s.f. of sophisticated living space including: 5 bedrooms, 5 en-suite bathrooms, 3 half baths (one per floor), and flexible bonus space for gym or home office (JADU specs included in these counts). Architectural features include soaring 9'6"-11' ceilings, three-car garage, seamless indoor-outdoor entertaining across three levels, multiple fireplaces, and an impressive rooftop patio accessible via private elevator. This is a rare chance to get in early on the design process and collaborate with the architect and designers to fully customize your dream home on one of Corona Del Mars most sought after streets.
Listing Courtesy of Brent Engstrom, Engstrom Real Estate Group
Exterior Features
Use of this site means you agree to the Terms of Use
Based on information from California Regional Multiple Listing Service, Inc. as of March 9, 2026. This information is for your personal, non-commercial use and may not be used for any purpose other than to identify prospective properties you may be interested in purchasing. Display of MLS data is usually deemed reliable but is NOT guaranteed accurate by the MLS. Buyers are responsible for verifying the accuracy of all information and should investigate the data themselves or retain appropriate professionals. Information from sources other than the Listing Agent may have been included in the MLS data. Unless otherwise specified in writing, Broker/Agent has not and will not verify any information obtained from other sources. The Broker/Agent providing the information contained herein may or may not have been the Listing and/or Selling Agent.


























