9720 SOPHIA AVENUE, NORTH HILLS CA 91343
- 3 beds
- 2.00 baths
- 1,769 sq.ft.
- 7,504 sq.ft. lot
Property Description
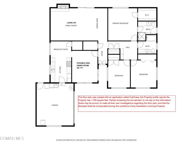
This single-story home is in a wonderful neighborhood of North Hills and has kept its charm of its mid-century design, note the grand double door entry. Proceed from the entry to a spacious Great Room which could be a combination Living Room and Dining Room, it has a raised fireplace, and a sliding window door to the backyard. The home's Den or multi-purpose room leads to its kitchen which features: ample cabinetry; tile countertops; a cozy nook; windows overlooking the useful side yard; and a direct doorway to the garage. The primary bedroom features: a large window to the backyard; a primary bathroom with a full shower and a convenient exterior door to the home's side and backyard; and there is a spacious walk-in closet with shelving. There are 2 additional bedrooms; and a second full bathroom. Enjoy lounging in your backyard which includes: a patio; and privacy that is enhanced by its surrounding landscaping. Additional features includes: shutters; a useful 90-degree turn in a driveway; and a 2-car garage with cabinets. This home offers endless possibilities to buyers who wish to update and customize it; it is situated close to schools, parks, shopping and recreation.
Listing Courtesy of Sharon Berman, Coldwell Banker Realty
Interior Features
Exterior Features
Use of this site means you agree to the Terms of Use
Based on information from California Regional Multiple Listing Service, Inc. as of March 23, 2026. This information is for your personal, non-commercial use and may not be used for any purpose other than to identify prospective properties you may be interested in purchasing. Display of MLS data is usually deemed reliable but is NOT guaranteed accurate by the MLS. Buyers are responsible for verifying the accuracy of all information and should investigate the data themselves or retain appropriate professionals. Information from sources other than the Listing Agent may have been included in the MLS data. Unless otherwise specified in writing, Broker/Agent has not and will not verify any information obtained from other sources. The Broker/Agent providing the information contained herein may or may not have been the Listing and/or Selling Agent.








































