3833 RANDOLPH, LOS ANGELES CA 90032
- 2,710 sq.ft.
- 7,502 sq.ft. lot
Property Description
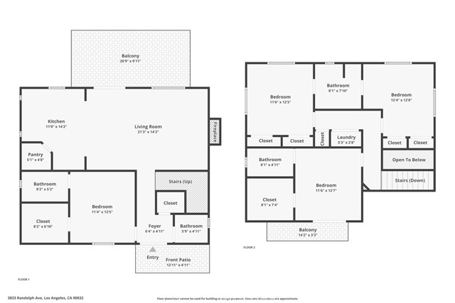
Two Homes on One Lot -BOTH HOMES VACANT– A Rare Opportunity in Elephant Hills Perfect for multi-generational living, investment, or living in one home while renting the other. Located in the highly desirable Elephant Hills neighborhood—just two streets off Collis and minutes from South Pasadena, a few minutes from Highland Park—this exceptional property offers two fully independent homes on a generous lot, each with its own parking and separate utilities. A truly unique find in one of Northeast LA’s most sought-after pockets. Back House – Modern -newer Construction with Stunning Views A newer, thoughtfully designed home featuring contemporary finishes and a flexible layout: • First-floor Master bedroom/full bath -Second master bedroom on second floor. • Guest-friendly half bath on the main level • Open-concept living, dining, and kitchen ideal for entertaining • Chef-inspired kitchen with high ceilings, custom cabinetry, pantry, island seating, and double glass doors opening to a spacious balcony overlooking mature trees and twinkling city lights • Inviting living room with a gas fireplace—perfect for cozy evenings • Upper level includes a second primary suite with private balcony, plus two additional bedrooms and a full bath • Central AC and heating for year-round comfort This home offers privacy, space, and beautiful natural surroundings. Front House – Fully Remodeled with Classic Charm A beautifully updated 3-bedroom, 1-bath home that blends character with modern convenience: • Brand-new kitchen cabinets with cork countertops • Fresh interior paint and refinished hardwood floors • Remodeled bathroom, new windows, and new roof
Listing Courtesy of Maribel Munoz, TREVINO PROPERTIES, INC.
Interior Features
Exterior Features
Use of this site means you agree to the Terms of Use
Based on information from California Regional Multiple Listing Service, Inc. as of April 22, 2026. This information is for your personal, non-commercial use and may not be used for any purpose other than to identify prospective properties you may be interested in purchasing. Display of MLS data is usually deemed reliable but is NOT guaranteed accurate by the MLS. Buyers are responsible for verifying the accuracy of all information and should investigate the data themselves or retain appropriate professionals. Information from sources other than the Listing Agent may have been included in the MLS data. Unless otherwise specified in writing, Broker/Agent has not and will not verify any information obtained from other sources. The Broker/Agent providing the information contained herein may or may not have been the Listing and/or Selling Agent.





































